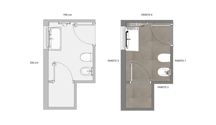
Bathroom design image in Rectangular shape, created with floor tiles SUMMER and wall tiles SUMMER
Bathroom design image in Rectangular shape, created with floor tiles SUMMER and wall tiles SUMMER
Bathroom design image in Rectangular shape, created with floor tiles SUMMER and wall tiles SUMMER
Back

Bathroom
Ideas

SUMMER

Ref.: Progetto 8353

Back