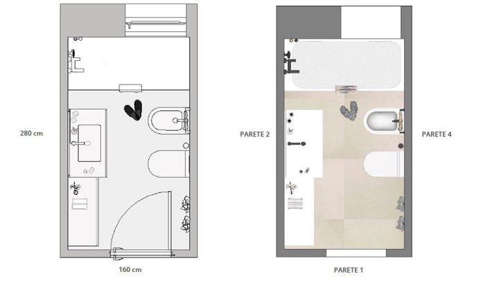
Image du projet de salle de bains de forme Rectangulaire, réalisée avec des carreaux de sol SUMMER et carreaux muraux LUMINA SAND ART
Image du projet de salle de bains de forme Rectangulaire, réalisée avec des carreaux de sol SUMMER et carreaux muraux LUMINA SAND ART
Retour

Idées
pour la salle de bains

LUMINA SAND ART

Ref.: Progetto 7344

Retour